医院废水氨氮上升

[复制链接]
查看1601 | 回复22 | 2025-3-25 09:18:27 来自手机 | 显示全部楼层 |阅读模式
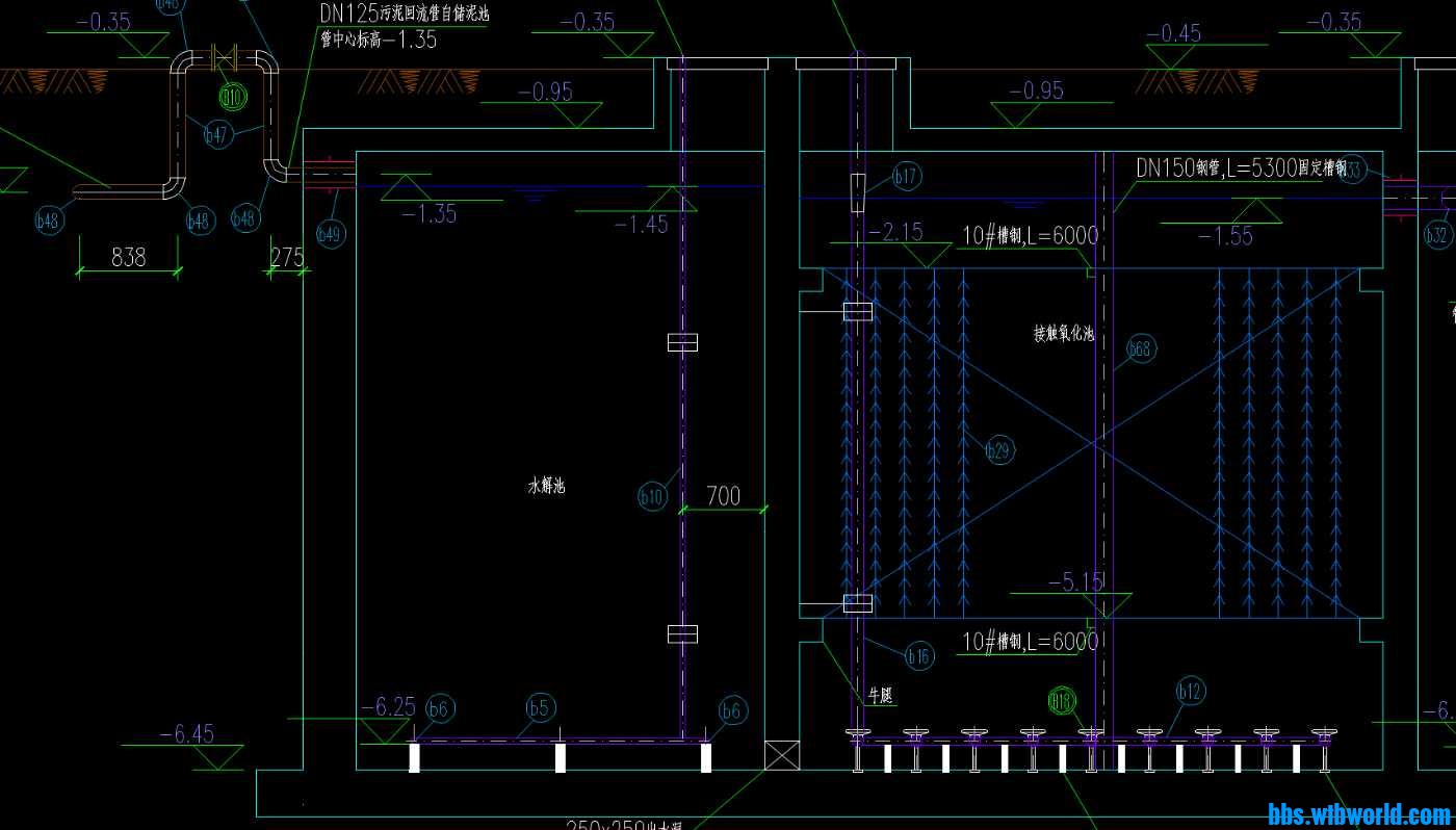
医院的废水,水量一天大概200吨,进水cod350,氨氮50-60。日常出水cod50-60,氨氮10-15。工艺水解酸化池跟接触氧化,分两组。日常也没有化验,只能用个量杯粗略看一下沉降比。主要根据出水在线数据调整曝气以及两组池子的进水配水。最近氨氮一直上涨,长期在25-30左右,有点慌,曝气比以前还有延长,温度也上升了,污泥浓度测不了但是目测比以往高一点。各位大神帮看看主要问题在哪。另外水解酸化池他是跟接触氧化共用一趟管曝气,池子的形式跟好氧池一样,只不过平常我们曝气开的特别小,二沉池外回流也是直接回流到水解酸化池然后到接触氧化池。这个水解酸化到底有没有作用?能否直接开大曝气当好氧池除氨氮呢,会不会影响出水cod IMG_20250325_090629.jpg
IMG_20250325_090604.jpg
IMG_20250325_090639.jpg
IMG_20250325_090646.jpg
[atta mmexport1742892320022.png
c mmexport1742892314966.png
himg]55468[/attachimg]
IMG_20250325_090715.jpg
回复

使用道具 举报

放牛班班长 | 2025-3-25 09:34:24 | 显示全部楼层
你们生化池应该还挂膜了,但你这个泥看着有点黑,不知道是不是拍照的问题。生化池曝气效果如何?均匀不?
回复

使用道具 举报

喵大米 | 2025-3-25 09:43:11 来自手机 | 显示全部楼层
放牛班班长 发表于 2025-3-25 09:34
你们生化池应该还挂膜了,但你这个泥看着有点黑,不知道是不是拍照的问题。生化池曝气效果如何?均匀不? ...

有点黑,接触氧化有挂膜。曝气均匀,跟以前没啥变化
回复

使用道具 举报

渡口 | 2025-3-25 10:01:04 | 显示全部楼层
这是氧化池的泥  污泥浓度不高啊   上清液还有碎泥   你的意思不要水解酸化了  变成氧化池   
回复

使用道具 举报

喵大米 | 2025-3-25 10:08:05 来自手机 | 显示全部楼层
渡口 发表于 2025-3-25 10:01
这是氧化池的泥  污泥浓度不高啊   上清液还有碎泥   你的意思不要水解酸化了  变成氧化池    ...

污泥浓度不高,我估计两千左右,但是以前一直没啥问题。进水氨氮五六十,出水在二十以下,标准是45。最近一直涨到快三十了。我是想水解酸化加大曝气当好氧池用,减轻氨氮压力
回复

使用道具 举报

喵大米 | 2025-3-25 14:43:58 来自手机 | 显示全部楼层
渡口 发表于 2025-3-25 10:01
这是氧化池的泥  污泥浓度不高啊   上清液还有碎泥   你的意思不要水解酸化了  变成氧化池    ...

污泥浓度条件受限,测不了。是想把水解酸化直接改成跟好氧池一样的条件,这样氨氮是不是能降的更低
回复

使用道具 举报

放牛班班长 | 2025-3-25 14:55:41 | 显示全部楼层
喵大米 发表于 2025-3-25 09:43
有点黑,接触氧化有挂膜。曝气均匀,跟以前没啥变化

水解酸化出水颜色如何?你们进水氨氮50-60是在哪里取样测的?现在实际接触氧化池的停留时间是几个小时?
回复

使用道具 举报

喵大米 | 2025-3-25 15:14:50 来自手机 | 显示全部楼层
放牛班班长 发表于 2025-3-25 14:55
水解酸化出水颜色如何?你们进水氨氮50-60是在哪里取样测的?现在实际接触氧化池的停留时间是几个小时? ...

水解酸化池的水比生化池稍微深一些颜色,区别不是特别大。进水氨氮在进水解酸化以前的调节池取的,接触氧化设计停留时间4.5小时,现在没有那么满负荷,实际停留时间大概有15个小时
回复

使用道具 举报

放牛班班长 | 2025-3-25 15:54:12 | 显示全部楼层
喵大米 发表于 2025-3-25 15:14
水解酸化池的水比生化池稍微深一些颜色,区别不是特别大。进水氨氮在进水解酸化以前的调节池取的,接触氧 ...

目前停留时间是够,就是你们这个挂膜不知道效果咋样,还是把污泥量往上提提,你可以试试把水解酸化的曝气打开,开上一天时间观察下。
回复

使用道具 举报

喵大米 | 2025-3-25 16:04:19 来自手机 | 显示全部楼层
放牛班班长 发表于 2025-3-25 15:54
目前停留时间是够,就是你们这个挂膜不知道效果咋样,还是把污泥量往上提提,你可以试试把水解酸化的曝气 ...

我们没排泥了,怎么快速把污泥量提提。还有一个问题,外回流因为是回到水解酸化池,水解酸化池曝气开的小,泥是不是大量停留在水解酸化池了?
回复

使用道具 举报

您需要登录后才可以回帖 登录 | 注册 微信登录

本版积分规则